Jedná se o PR článek. Více info k PR článkům můžete najít ZDE.
PR článekÚterý, 21. května 2019, 16:30
Do konce roku 2020 bude na kraji Křelova blízko u Olomouce stát jedenáct nových zděných rodinných domů. S výstavbou chtějí developeři začít již ve třetím čtvrtletí tohoto roku.
„Hlavní výhodou rodinných domů, které se chystáme stavět v Křelově, je jejich standard a velikost pozemku. Jedná se navíc o výstavbu na klíč včetně kolaudace a po předání lze okamžitě dům užívat. A také dobrá dostupnost do Olomouce a občanská vybavenost. Do nákupního centra Globus to mají lidé z Křelova opravdu blízko, stejně tak i za přírodou. Kousek je to do malebného Litovelského Pomoraví, přímo Křelovem vede cyklostezka pojící město s okolními, turisty často vyhledávanými, cíli,” vyjmenovává výhody nového bydlení v Křelově Ing. Patrik Legut, jednatel FND Stavby s.r.o., developerské divize působící v investiční skupině Firma na důvěru s. r. o. , která plánuje domy v Křelově postavit.
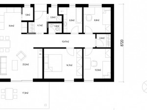
Křelovské domy budou stát blízko cyklostezky s výhledem do polí a na nedalekou Skrbeň. „Nejedná se o žádné dřevostavby, ale o kvalitní zděné domy 4+kk, cena zahrnuje vysoký standard a rozsáhlý pozemek,” upřesňuje Ing. Patrik Legut. Zároveň dodává, že v případě zájmu je možnost s projektantem společnosti upravit projekt či změnit finální podobu podlah, koupelen a ostatního vybavení.
Užitná plocha domů je 94 metrů čtverečních, přičemž výměra pozemku je variabilní v závislosti na konkrétním místě. Domy však budou stát na pozemcích o rozloze od 660 metrů čtverečních do téměř 900 metrů čtverečních. Takhle velké pozemky jsou dnes v developerských projektech vzácností, ale stále více žádané zákazníky. „Obrovskou předností je propojení domu a zahrady, kdy jsme odbourali patrovou výstavbu a dokonale zasadili dům do krajiny,” dodává Ing. Patrik Legut.
„V základní ceně, oproti běžným řešením, je podlahové vytápění či krbová kamna a nadstandardní vybavení koupelen,” říká Ing. Patrik Legut. Podle něj je dnes normální, že developerské firmy avizují skvělou cenu za dům s pozemkem, ve finále ale takový dům přijde zájemce třeba i o milion dráž, protože ve standardu chybí finální úpravy povrchu jako podlahy, dlažby, obklady, interiérové dveře, vybavení koupelen zařizovacími předměty a také topení. „Takovou cestou se nechceme vydávat, proto má zájemce o dům již v základní ceně vše co je potřeba pro běžný provoz domu. To ovšem neznamená, že si budoucí majitel nemůže upravit dům podle svého,” vysvětluje Patrik Legut, „Ale může se hned nastěhovat a plnohodnotně bydlet.”

Divize FND Stavby se kromě výstavby developerských projektů zabývá výstavbou unikátních rodinných domů na klíč. V neposlední řadě i rekonstrukcemi domů, budov a objektů. „Pokud lidé najdou svůj vysněný dům, ve kterém by chtěli bydlet, ale je nutná jeho rekonstrukce, můžou se obrátit na nás. Ke každé zakázce přistupujeme individuálně a dáváme důraz na kvalitně odvedenou práci,” říká Patrik. „Stále ale platí, že nejlepší je jít bydlet do nového, moderního a kvalitně postaveného domu. Myslím, že domy v Křelově toho budou důkazem,” dodává.
Chceš mít přehled o tom, co se děje kolem tebe?